Project No. 99-217G-00
Approx.
EJev.: -9.7 ML T
Northing:
643910.8
Easting:
3303421.8
-
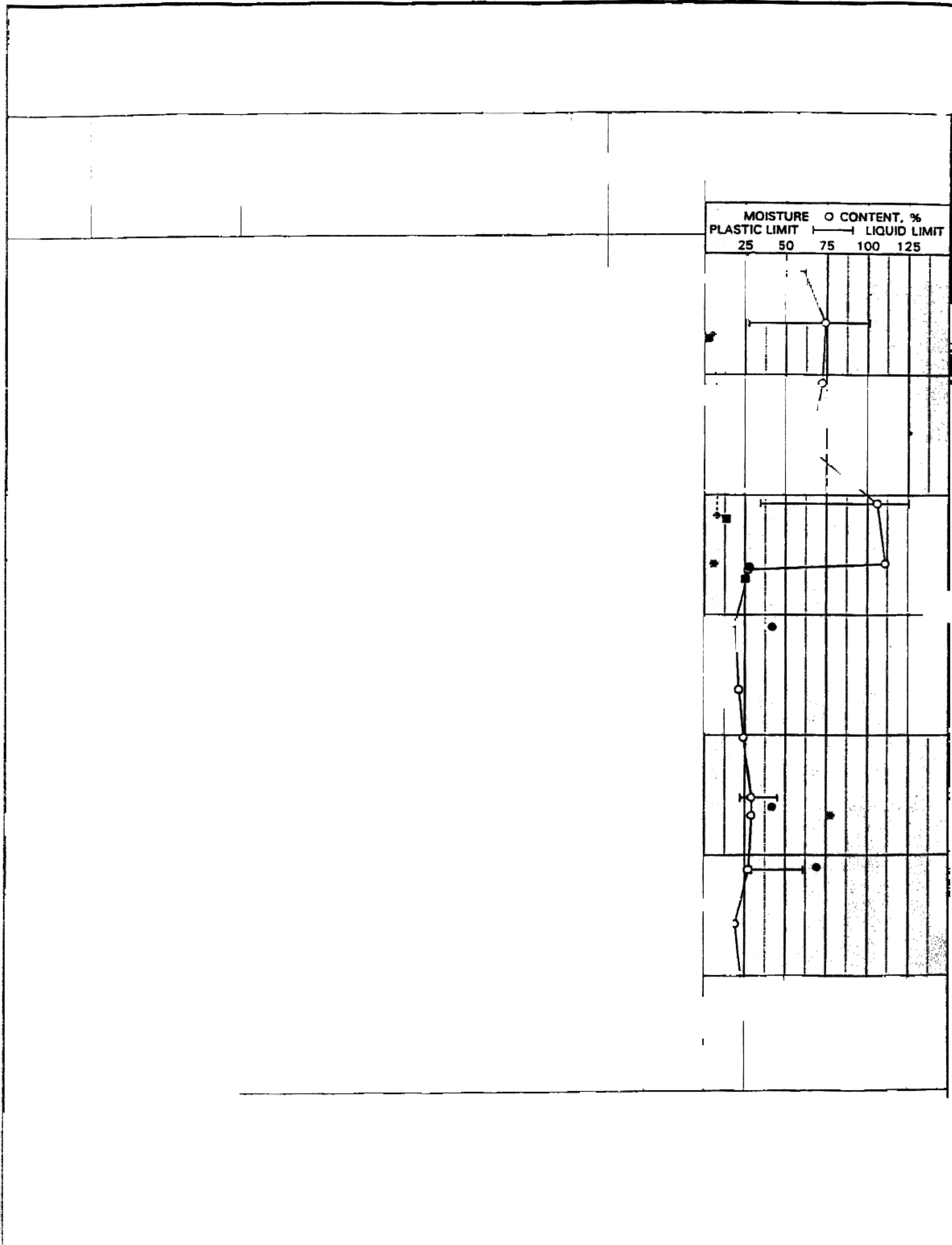
LOG OF SOIL BORING
Project Name: Houstol'! Ship Channel, Galveston Bay
Boring No.: MB-23
Date: 6/30100
Water Depth: 12 feet
Station: 58 + 022
Time Water Depth Measured: 08:40
Offset: 602.9
-
u>
-~
1&.-
->
u-<
't~
In"
ElEV.
DEPTH.
FEET
MOISTURE 0 CONTENT. %
I PLASTIC
LIMIT
If
LIQUID
LIMIT
2~~__50-
75
100
125
~
of"
~O
10
wi shell and sand inclusions 15'-20
2.64
30
20
...
87
42
2.62
.
-401,.
'.
I
so
15
-.0
0
Firm to stiff olive gray Sil TV CLAY
92
he'
clay wi shell below 50'
-I